Детали
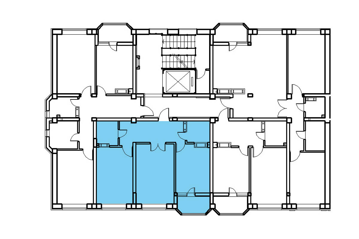
Квартира №: 14
Подъезд: Подъезд 1
Этаж: Этаж 4
Продается:
Цена за м²: 700 €
Цена квартиры: 43365 €
Общий метраж: 61.95 м²
Количество комнат: 2
Тип квартиры: Белый вариант } else { ?>Под ключ
Характеристики
1. Прихожая - 9.85
2. Кухня - 11.30
3. Балкон - 3.65
4. Гостиная - 15.90
5. Спальня - 14.35
6. Ванна - 3.50
7. WC - 3.40
План квартиры на этаже
Способы оплаты
Возможны несколько способов расчёта:
— “Полная оплата” стоимости квартиры — это внесение 100% суммы стоимости квартиры на момент заключения контракта.
— “Оплата в рассрочку” предусматривает оплату стоимости квартиры путём внесения платежей по частям на период строительства и до его завершения – сроком до 2-ух лет.
— “Оплата в кредит” подразумевает расчёт посредством использования кредитной линии, предоставляемой инвесторам нашей компанией сроком до 4-х лет с момента начала строительных работ и на основании специальных условий. При осуществлении оплаты посредством использования кредитной линии, базовая стоимость 1 кв.м. недвижимости идентична стоимости при полной оплате. Данный вариант расчёта не предусматривает применение установленной системы скидок.
Важными условиями при заключении контракта при оплате в рассрочку и в кредит являются:
- Выплата первоначального взноса в размере не менее 30% от общей стоимости квартиры.
- Далее стоимость квартиры выплачивается в рассрочку. До момента получения ключей от квартиры должна быть внесена сумма не менее 70% от её общей стоимости. Однако, взносы должны осуществляться не реже, чем 1 раз в 6 месяцев.
- Остаточная сумма, которая составляет 30% от общей стоимости квартиры может быть выплачена в рассрочку сроком до 2-х лет после даты ввода дома в эксплуатацию, при условии 6% годовых на неоплаченную сумму. Пожалуйста, обратите внимание, что в данном случае повышается конечная сумма инвестируемых средств!
Перечень выполняемых работ и отделочных материалов
Стоимость квартиры включает в себя стоимость выполненных и переданных работ, связанных со строительством каждой отдельной квартиры и самого объекта в комплексе. Квартиры будут выполнены в “белом варианте”. Сюда входят следующие работы:
- Возведение корпуса здания, в том числе отделка фасада (утепление), монтаж кровли и работы по облагораживанию территории объекта.
- Установка и ввод в эксплуатацию лифта.
- Монтаж систем по снабжению дома электричеством, водой, природным газом, а также установка счётчиков учёта входящих ресурсов.
- Подключение дома к телекоммуникационным сетям.
- Отделочные работы лестничных площадок.
- Обустройство мест, отведённых для сбора и вывоза мусора. Мусорные контейнеры будут расположены в пределах территории двора, в специально отведённом соответствующими компетентными органами месте.
- Монтаж и ввод в эксплуатацию систем автономного газового отопления и горячего водоснабжения в каждой квартире индивидуально. Установка счетчиков учёта потребления газа.
- Выполнение дополнительного звукоизоляционного слоя в междуэтажных перекрытиях.
- Монтаж труб (металлопласт) PEX-AL в полы для автономных систем отопления. Установка стальных обогревательных элементов.
- Установка системы теплых полов в ванной комнате и кухне new.
- Монтаж внутренних сетей холодного водоснабжения и канализационной магистрали.
- Монтаж внутренних сетей распределения электроэнергии и телекоммуникационных сетей, в том числе установка счетчиков учёта потребления электроэнергии для каждой квартиры.
- Монтаж внутренней газовой сети.
- Выравнивание полов квартиры.
- Установка окон из пятикамерного ПВХ профиля с тройным стеклопакетом, со стеклом с низким коэффициентом излучения (Low-E), отливом и подоконником из ПВХ (окна, выходящие на наружные стены) new.
- Установка балконных окон из ПВХ профиля.
- Выравнивание сухой смесью стен и потолков помещения.
- Входные металлические двери квартиры.
- Монтаж и ввод в эксплуатацию системы домофонной связи.

